
Daylighting Innovation and Analysis Lab (DIAL)
The Daylighting Innovation and Analysis Lab (DIAL) is the first-of-its-kind research facility dedicated to advancing the science and application of daylighting in the built environment. Currently located at Oregon State University, DIAL provides a unique platform for interdisciplinary research, education, and collaboration in the field of daylighting.
What is DIAL?
DIAL is a state-of-the-art mobile laboratory platform that enables researchers to conduct experiments and gather data on daylighting strategies in real-world settings.
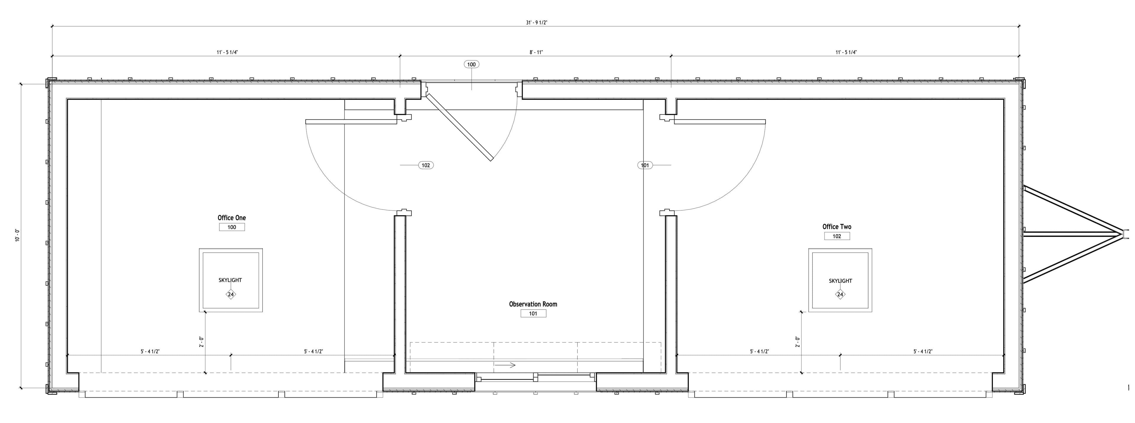
DIAL contains two symmetrical office rooms each equipped with nine electrochromic windows and one electrochromic skylight, dimmable LED lighting, and a suite of sensors to monitor environmental conditions and occupant responses.

What is electrochromic glazing?
Electrochromic glazing is a type of smart glass that can change its tint or opacity in response to an applied voltage. This technology allows for dynamic control of solar heat gain and daylight transmission, enhancing occupant comfort and reducing energy consumption in buildings.
In DIAL, the electrochromic windows and skylight can be adjusted to various states, from clear to fully tinted, allowing researchers to study the effects of different daylighting conditions on indoor environments and occupant well-being.
One observation room allows for experimenters to control and monitor the conditions within the test rooms. The entire facility is housed within a standard shipping container, allowing for easy transportation and deployment to various locations.

The facility will be able to operate fully off-grid using solar panels and battery storage, allowing for deployment in diverse locations and climates. The trailer can be moved and rotated to optimize daylighting conditions and access different populations, including non-college students and remote communities, for research studies.
Networking is provided either through cellular or satellite internet connections, allowing experimenters and participants to work remotely.
The trailer is fully ADA-compliant.
Research Opportunities
DIAL offers a wide range of research opportunities for exploring the impact of daylighting on human health, productivity, and well-being. Researchers can investigate various daylighting strategies, including window design, shading systems, and lighting controls, to optimize indoor environmental quality.
The facility also provides opportunities for testing new technologies and materials related to daylighting, such as electrochromic glazing and advanced lighting systems.
Collaboration and Education
DIAL serves as a hub for collaboration among researchers, industry professionals, and educators interested in daylighting and sustainable building design. The facility offers opportunities for interdisciplinary research projects, workshops, and training programs.
Technical Specifications
Dimensions
DIAL is a trailer-based, ADA-compliant facility, allowing for easy transportation and deployment. The dimensions of the trailer are as follows:
- Length: 31' - 9 1/2" (~ 10 m)
- Width: 10' - 0" (~3 m)
Glazing
DIAL is equipped with Halio electrochromic smart-glazing.
| Clear | Tinted | |
|---|---|---|
| Visible Light Transmission (VLT) | 68% | 3% |
| Solar Heat Gain Coefficient (SHGC) | 0.46 | 0.08 |
| Thermal Transmittance (Ug-value) | 0.24 | |
| UV Transmission | less than 1% | |
| Exterior Reflectance | 15% | 4% |
| Interior Reflectance | 14% | 13% |
| Sound Reduction (Rw) (C; Ctr) | 36 dB (-1; -3) | |
| Response Time | ≤ 20 seconds | |
| Switching Time | ≤ 3 minutes | |
The data are based on:
- 12.7 mm gap with 90% Argon / 10% Air fill
- iPlus 1.0T Low-E coating on surface 3
- Energy Select 28 Low-E coating on surface 2 for standard double glazing
Climate Controls
- Two independent mini-splits: separately condition each office room
- Heat recovery ventilation (HRV): Lunos e2 ductless unit for fresh air with efficient heat recovery
Rooftop Sensors
- Solar Monitoring Station (EKO's MS-90 Sensor and MS-80SH Pyranometer): collects high-quality solar irradiance data such as Direct Normal Irradiance (DNI) and Global Horizontal Irradiance (GHI)
- Spectroradiometer (JETI's Specbos 1211-2): collects spectral irradiance data in the 300-1100 nm range, allowing accurate daylight spectral measurements

Indoor Sensors
- Spectroradiometers (JETI's Spectraval 15x1): measure not just how much light there is, but what kind of light it is, i.e., how much of each "color" (wavelength) is present (spectral irradiance)
- Illuminance Meters (Konica Minolta's T-10A): measure how bright the light is for people (the light level your eyes perceive), from very dim to extremely bright (photopic illuminance)
- Cameras (Kodak's PixPro 360): these 235° field of view cameras are used to monitor rooms and skylights
Power
- Wired/Corded Power (grid/shore power connection)
- Solar Panels (4.4 kW)
- Battery Banks (43.2 kWh)
- Backup Generator (Predator 9500)





